Voraussetzung für eine volle und wirtschaftliche Ausnutzung der Stahleinlagen (Bewehrung) ist u.a. ihr lagerichtiger Einbau in den umhüllenden Beton. Diese wichtige Einbauarbeit wird auf der Baustelle auch darum stets mittels eines extra für diesen Zweck erstellen Bewehrungsplanes durchgeführt.
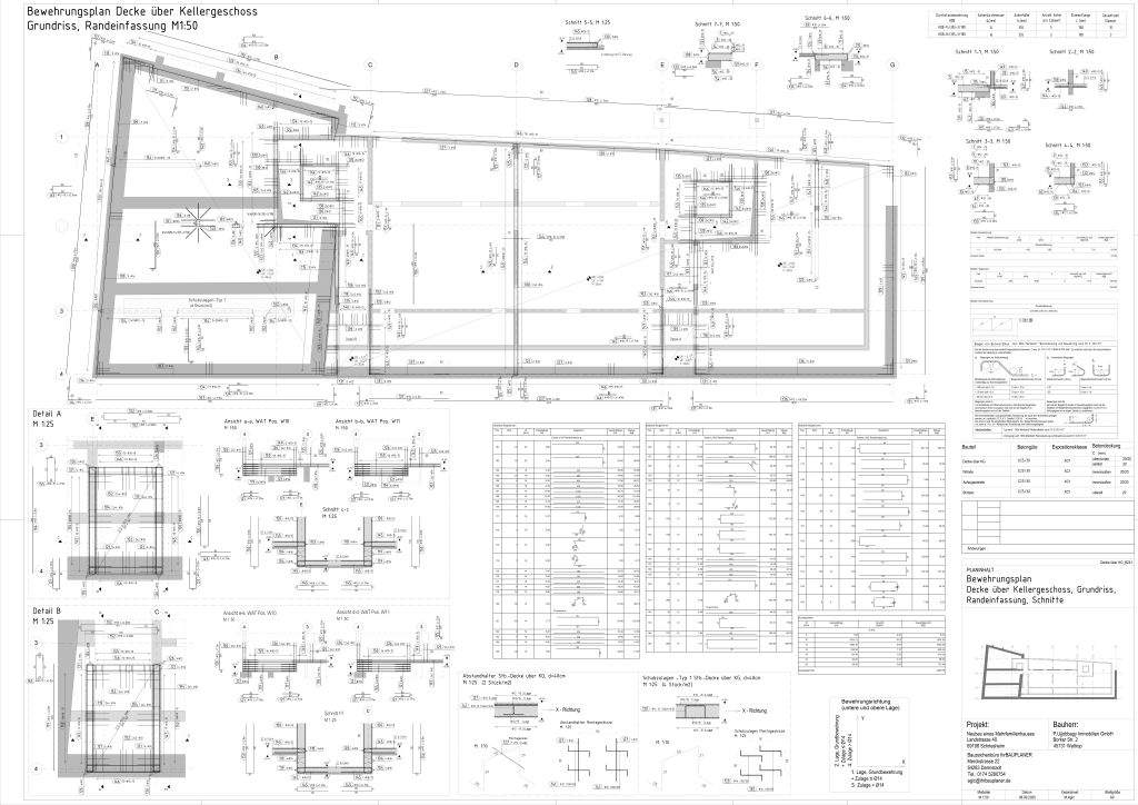
Bewehrungspläne sind Ausführungspläne, welche die im Beton zu verlegenden Betonstähle darstellen. Der Bewehrungsplan hat die Aufgabe über die Güte, Lage, Querschnitt, Lange und Anzahl der Stahleinlagen in Stahlbetonteilen erschöpfend und klar Auskunft zu geben.
Zusammen mit den zugehörigen Stahllisten, ist der Bewehrungsplan dann Beweismittel für den ausführenden Unternehmer.
Art, Inhalt und Grundregeln der Darstellung sind in der DIN 1356-1 geregelt.
Wie die Schalpläne, gehört auch die Bewehrungspläne zu den genehmigungspflichtigen Bauvorlagen.
Die HOAI (Honorarordnung für Architekten und Ingenieure) regelt die Leistungsbilder und die Vergütung der Leistungen für einzelne Phasen des Planungsprozesses. Die zurzeit gültige Fassung der HOAI ist die vom 10.07.2013 und am 17.07.2013 in Kraft getretene HOAI 2013.
Die Erstellung von Schal- und Bewehrungsplänen im Massivbau ist Bestandteil der Leistungsphase 5.
Unsere Beispiele:
Hier erhalten Sie kleinen Eindruck von unseren realisierten Projekten. Natürlich haben wir viele Projekte verwirklicht und können Ihnen auf Wunsch eine ausführliche Referenzliste zukommen lassen.